Toggle navigation
Search
About Us
Contacts
Contacts
Property request
Favorites
MENU
Search
About Us
Contacts
Contacts
Property request
Favorites
Previous
Next
General
Description
Complex
Map
Four-room apartment S. Margherita Ligure
Zone: San Lorenzo
Ref.
B6
Strada Statale 1
Information
General
Type:
Four-room apartment
Condition:
New
Floor:
Second floor
Heating:
Indipendent heathing
View:
Sea view
Brightness:
Free on the four sides
Kitchen:
Open kitchen
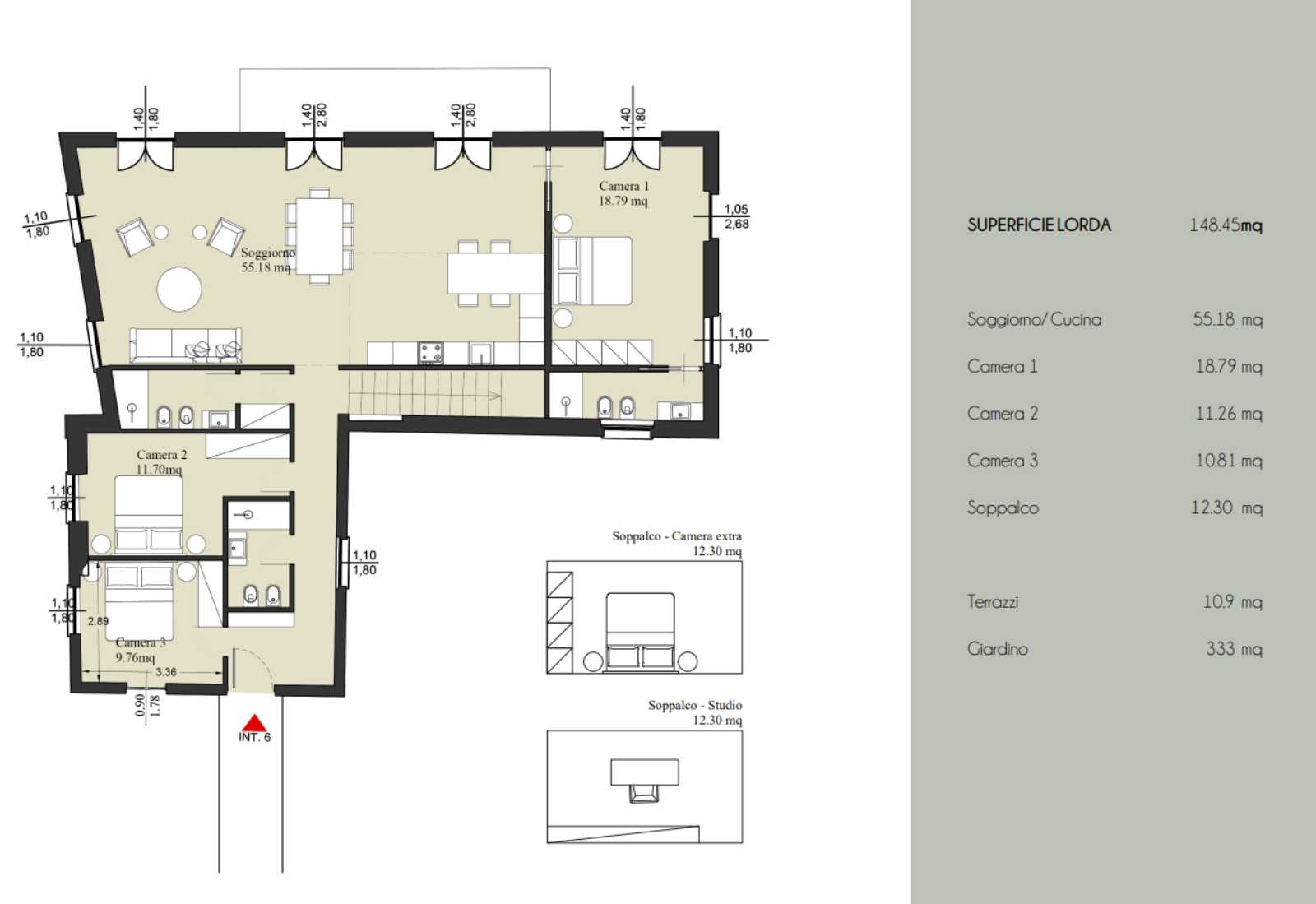
Mq:
148
Local:
4
Rooms:
3
Baths:
3
Balcony:
1
Parking spaces:
1
Energy class:
APE in fase di valutazione
Services
Garden
Swimming pool
Alarm
Security door
Air conditioning
Video entryphone
New windows
New electrical system
Ancient building
Price for sale:
€ 1.280.000,00
Condominium fees:
0.00 €
per month
Description
On the top floor of the suggestive "Villa Padronale" of "Borgo degli Ulivi" complex, we sell this exclusive newly built apartment. With an independent entrance, the property consists of a large living area with living room, dining area and kitchen; three bedrooms and three bathrooms. The living area has 6 windows overlooking the surrounding panorama, that make the property particularly bright and airy; there is also a balcony overlooking Santa Margherita Ligure sea. The apartment includes a large private garden, perfect to enjoy the sun and the open air. The new complex called "Borgo degli Ulivi" is surrounded by nature and it is located in "San Lorenzo della Costa", a Santa Margherita Ligure hill. The project involves the creation of 6 real estate units: six of them will be located in the "Villa Padronale" and two of them will be two independent villas, called "Villa Belvedere" and "Villa La Terrazza".
Other apartments in this complex Borgo degli Ulivi
8
Unit
6
Available
Residential complex form
Ref.
Mq
Type
Plans
Local
Price
Availability
Previous
Next
Ref.
B1
Mq.
73
Ref.
Three-room apartment
Plans
First ground
Local
3
Price
€ 650.000,00
Availability
See apartment
Previous
Next
Ref.
B2
Mq.
72
Ref.
Two-room apartment
Plans
First ground
Local
2
Price
€ 591.000,00
Availability
See apartment
Previous
Next
Ref.
B3
Mq.
102
Ref.
Three-room apartment
Plans
First floor
Local
3
Price
€ 762.000,00
Availability
See apartment
Previous
Next
Ref.
B4
Mq.
73
Ref.
Three-room apartment
Plans
First floor
Local
3
Price
Details on request
Availability
See apartment
Previous
Next
Ref.
B5
Mq.
75
Ref.
Three-room apartment
Plans
Second floor
Local
3
Price
€ 647.000,00
Availability
See apartment
Previous
Next
Ref.
Villa Belvedere
Mq.
150
Ref.
Villa / Detached house / Semi detached
Plans
Multiple floors
Local
4
Price
€ 1.850.000,00
Availability
See apartment
Previous
Next
Ref.
Villa La Terraza
Mq.
210
Ref.
Villa / Detached house / Semi detached
Plans
First ground
Local
4
Price
Details on request
Availability
See apartment
Plans
Similar properties in the area
Information request
Contact us for any information about this property
Contact Us
Add to favorites
Request a proposal
Request a personalized property proposal
Request a proposal
×
Title